Продава: 3-стаен, Тракия, Пловдив, 117кв.м., 5/10ет., 113064€

Реф.№
2122
Вид на имота: 
Местоположение: 
Квадратура: 
117
Цена: 
€113 064
Цена в лева: 
221 133.96 лв.
Етаж: 
5
Етажност: 
10
Тип строителство: 

БЕЗ КОМИСИОН ОТ КУПУВАЧА! ДИРЕКТНИ ЦЕНИ ОТ ИНВЕСТИТОР!  " ЗЛАТЕН КЛЮЧ-НЕДВИЖИМИ ИМОТИ" има удоволствието да предложи за продажба апартаменти в новостроящ се жилищен комплекс в жк.Тракия. С избор на етажност, разпределения и квадратури, както и предпочитани изложения. Комплексът ще разполага с озеленени площи, детски площадки, зони за отдих, площадни пространства. 

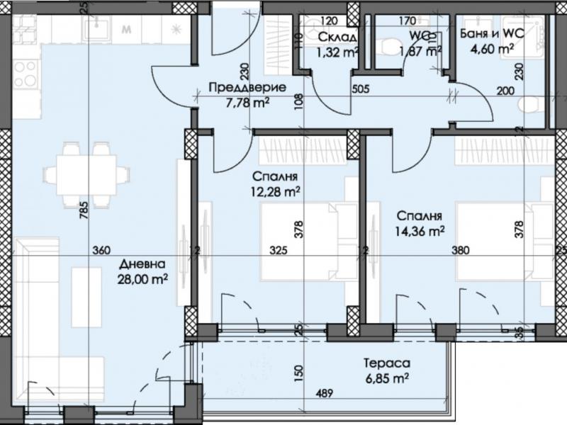
Предложение за покупка на тристаен апартамент, представляващ: дневна с кухненски бокс и трапезария, две спални, преддверие, баня с тоалетна, отделно втора тоалетна, склад, тераса. Южно изложение.

Апартаментите ще се издават завършени по БДС-стандарт:

  • Стени и тавани - машинна мазилка;
  • Подове - циментова замазка;
  • Подове на терасите в завършен вид с положен гранитогрес и положен парапет;
  • Поставена дограма от висок клас;
  • Поставена  блиндирана входна врата;
  • ВиК инсталация - външни връзки, вертикални и хоризонтални щрангове до тапа, водомер за студена вода.
  • Ел. инсталация- външна връзка, главно ел.табло, апартаментно ел.табло, вътрешна инсталация с монтирани ключове, контакти, звънчева инсталация.

Предлагат се няколко схеми на плащане в етапа на строителството.

Съдействие при ипотечно кредитиране от водещи банки! 

При интерес, не се колебайте да се свържете на посочения телефонен номер в офертата.

Осигуряваме на клиентите си качествено обслужване! Оказваме посредническа дейност от началото до финализирането на сделка за покупко-продажба на имот.

"Домът не е просто място, където се прибираме вечер, а една основа, върху която градим заобикалящия ни свят!"

Стефана Маркова

Управител /отдел-продажби/
0887 744 014

Запитване и огледи

Полетата, отбелязани със * са задължителни.

Тази форма изпраща email до zlatenkluch@gmail.com с Вашите: IP адрес/анти спам защита/, име, телефон и имейл. Данните се използват, за да се свържем с Вас, относно Вашето запитване.

За повече информация и за начина на управление на Вашите данни посетете:  Политика за поверителност и защита.

6 + 0 =
Solve this simple math problem and enter the result. E.g. for 1+3, enter 4.

Препоръчани имоти

  • 3-стаен
    Пловдив...
    €159000
  • 3-стаен
    Пловдив...
    €260000
  • 2-стаен
    Пловдив...
    €106395
  • 2-стаен
    Пловдив...
    €76636
  • 3-стаен
    Пловдив...
    €101780
  • 3-стаен
    Пловдив...
    €105425
  • 2-стаен
    Пловдив...
    €76910
  • 2-стаен
    Пловдив...
    €78742
  • 2-стаен
    Пловдив...
    €73137
  • 2-стаен
    Пловдив...
    €76126
  • 1-стаен
    Пловдив...
    €48275
  • 3-стаен
    Пловдив...
    €102782
  • 3-стаен
    Пловдив...
    €100460
  • 3-стаен
    Пловдив...
    €119305
  • 2-стаен
    Пловдив...
    €72069